

法律变了,标准必须跟上《消防法》《消防安全责任制实施办法》等法规都要求设置符合标准的标志,旧标准1995年出台,很多条款已与现行法律不匹配。
新建筑、新业态层出不穷大型商业综合体、新能源设施、物流仓储……这些30年前没有的场所,对消防安全标志提出了新需求,旧标准已无法覆盖。
标准体系需要“全家福”之前标志图形(GB 13495.1)和设置要求(GB 15630)是两套标准,互相打架。现在统一成系列,就像给消防安全标志配上了“说明书”和“安装图”。
✅ 标志更醒目——尺寸、位置有标准,不再“藏在角落里”✅ 质量有保障——反光、耐用有要求,烟雾中也能看清✅ 维护更及时——损坏褪色定期换,不会“急用时找不到”
一句话:标志清晰不迷路,逃生路上有保障
✅ 采购不盲目——基材、光泽有指标,按图索骥不踩坑✅ 安装不凭感觉——多高、多远有尺寸,拿着尺子就合规✅ 维护有台账——定期检查写入标准,安全责任更清晰
一句话:标准在手,管理不愁
✅ 执法有标尺——尺寸、距离可量化,用数据说话不扯皮✅ 评估有体系——标志图形+设置要求,配套使用成闭环✅ 监管更精准——场所清晰、要求细化,专项整治有依据
一句话:数据执法不靠猜,监管效能提起来
GB 13495.3-2026的实施,不是简单的编号变更,而是我国消防安全管理迈向精细化、系统化的重要标志。8月1日起,让我们一起关注身边的消防安全标志,让每一块牌子都成为守护生命的“安全卫士”。

GB 13495.3-2026 与旧标准 GB 15630-1995 的核心新增与变化点
本新标准代替 GB 15630-1995《消防安全标志设置要求》,是 GB 13495《消防安全标志》系列标准的第 3 部分,2026 年 8 月 1 日正式实施,核心的新增、修订、删除内容梳理如下:
一、整体框架与标准体系的重大调整
1.标准归属重构:从独立的 GB 15630 单项标准,整合为 GB 13495 系列体系的第 3 部分,与第 1 部分(标志图形 /尺寸 / 颜色)、第 2 部分(产品通用要求)形成完整闭环,解决了旧标准标志、产品、设置要求脱节的问题。
2.章节结构全面优化:
o旧标准共 8 章,新标准调整为 9 章 + 1 个规范性附录,逻辑层级更清晰;
o将原 “设置原则” 章节更改为设置部位,按场所分类明确标志设置要求,可执行性大幅提升;
o把原 “设置方法” 拆分为标志牌的安装和标志的排列两个独立章节,拆分后技术要求更聚焦;
o将原 “检查与维修” 章节更改为运行维护,重构了全生命周期的管理要求。
二、核心新增技术内容
1.新增体系化的产品合规引用要求
明确设置的消防安全标志产品必须符合 GB 13495.2(产品通用要求)、GB 17945(消防应急照明和疏散指示系统)的规定,旧标准无相关体系化强制要求。
2.新增分场景的标志产品基材与性能强制要求
o室内非内光源、非地面附着安装的标志,基材应为金属板或有机板;
o室外设置的禁止 / 警告 / 灭火设备 / 报警装置标志,基材必须为金属板;
o明确标志表面安全色的色品坐标、亮度因数、光泽值需符合 GB 13495.2 要求。
3.新增标志型号强制选用规则,填补选型空白
o新增表 1,按最大观察距离 Dmax 明确对应标志型号(1-7 号)的选用边界;
o新增表 2,明确典型场所 / 部位的最低型号要求:如室内高度<3.5m 的安全出口≥4 号,3.5m~4.5m≥5号,>4.5m≥6 号,室外入口 / 防火区≥5 号。
4.新增不同发光类型标志的量化技术要求
o无发光功能标志:火灾疏散时间内,平均照度≥5lx,照度均匀度≥0.7;
o蓄光型标志:明确日常激发照度、应急发光时间需≥场所疏散时间,不满足照度要求的需执行上述照度标准;
o内光源标志:应急发光时间≥30min 且满足场所疏散时间要求;
o新增强制条款:“安全出口” 标志牌必须采用内光源消防安全标志。
5.新增细化的安装、排列量化规则
o疏散通道内灭火设备标志:应采用悬挂安装,标志牌平面与疏散方向垂直,高度不满足时可墙面附着安装;
o附着安装固定要求:圆形 / 三角形标志至少 3 点固定,正方形/ 长方形至少 4 点固定,固定点需在边缘衬底色部位;
o同平面多标志间距≥标志公称尺寸的 20%,相反方向的组合标志间距≥公称尺寸的 100%;
o同一标志杆上标志牌不超过 4 个,明确警告标志→禁止标志→灭火 / 报警标志→疏散逃生标志的优先排列顺序,以及不同形状标志的间距要求;
o室外柱式安装标志:基本风速需采用当地 50 年一遇 10min 平均最大风速,且不得小于 22m/s。
6.新增规范性附录,统一核心参数判定标准
新增附录 A(规范性),明确最大观察距离 Dmax 的确定方法,分室内房间、室外危险品区域、道路边缘等不同场景,给出了标准化的计算规则,解决了旧标准无统一判定依据的问题。
三、核心修订与变更内容
1.设置场所全面扩容,覆盖范围大幅拓宽
旧标准设置场所表述笼统,新标准明确 7 大类应设场所,新增综合管廊、建设工程施工现场、汽车加油加气加氢站、旅游景区、矿区/ 油气田 / 草原林区等场景,适配当前消防监管的全场景需求。
2.设置部位要求大幅细化,可执行性显著提升
按建筑、车库、地铁 / 人防 / 管廊、施工现场、易燃易爆场所、露天公共场所、林牧区等分类,逐条明确应设标志类型和设置要求:
o明确地下消火栓、消防水泵接合器需组合设置对应标志 + 方向辅助标志,箭头指向设备位置;
o隐蔽式灭火设备需设置对应标志 +“禁止阻塞” 标志,不明显的需增设方向辅助标志;
o细化单向门 “推开 / 拉开”、疏散门 “禁止锁闭”、滑动疏散门 “滑动开门”、应急部位 “击碎板面” 等标志的精准设置要求。
3.室内标志设置的高度、间距要求精准修订
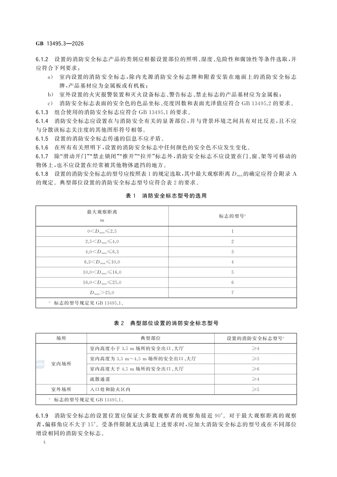
o安全出口标志:门框两侧安装的,中心点距地面 1.3m~1.5m,侧边距门框边缘 0.10m~0.15m;
o疏散通道标志:墙面安装的上边缘距地面≤1.0m,直通道间距≤20m,袋形走道≤10m,转角区≤1.0m;
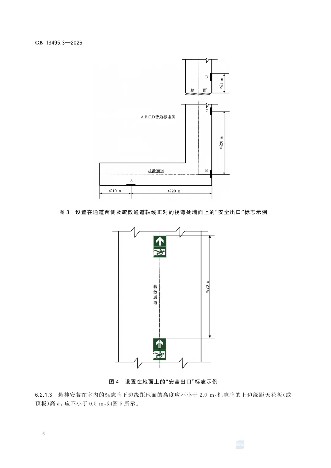
o室内悬挂安装的标志,下边缘距地面高度≥2.0m;墙面附着安装的其他标志,中心点距地面 1.3m~1.5m。
4.室外标志设置要求全新细化
o建筑附着安装的,中心点距地面≥1.3m;
o空旷部位柱式安装的,下边缘距地面≥1.2m;
o道路两侧设置的,标志牌平面与车辆行驶方向成 80°~90°,内边缘距路肩≥0.25m,下边缘距路面高度 1.8m~2.5m。
5.运行维护要求全面量化升级
替代旧标准笼统的检查要求,明确了不同类型标志的检查周期和量化检测指标:
o外观检查:至少每月 1 次,覆盖外观完好度、安装牢固度、指示方向准确性;
o无发光 / 蓄光型标志:至少每半年开展 1 次照度检测;
o内光源标志:至少每半年开展 1 次照明功能检测,明确断电后 5s 内自动启动、表面最小亮度≥5cd/m² 等硬性指标。
6.柱式安装要求修订
优化了标志杆的安装、结构设计、固定连接要求,新增风速荷载、连接牢固度的强制规定,比旧标准更严谨。
四、删除的核心内容
1.删除了消防安全标志牌的制作要求,相关内容统一纳入 GB 13495.1 和 GB 13495.2,新标准仅聚焦设置环节,边界更清晰。
2.删除了内部照明、自发光消防安全标志的产品性能要求,相关产品要求由 GB 13495.2、GB 17945 统一规定,避免标准交叉重复。
3.删减了旧标准中与产品本身相关的非设置类条款,完全聚焦标志的设置、安装、排列、运行维护全流程要求。















方式一:
第1步:点击公众号名片关注

(关键字的回复位置)
注:关键字写错的话,系统是无法识别出你要什么的,所以大家一定要正确的回复关键字,一个字不要多一个字不要少,不要有空格,不要打任何标点符号。如果回复后没有弹出资源链接,大家一定要仔细对照是不是书写错了。
30天有效,大家抓紧下载!
方式二:


●免费下载!2025年国家宪法日暨全国宪法宣传周宣讲课件PPT附宪法宣传周海报!
●免费下载!2025年11月典型事故案例警示片/PPT附1-10月警示片●免费下载!【消防宣传月】新的国家标准《重大火灾隐患判定规则》开始实施!
●免费下载!新标准发布!全部替代GB/T33000《企业安全生产标准化基本规范》
●免费下载!2025隐患直击—祸从违章来(十一)上、中、下集
