▲点击上方蓝字关注公众号入群, 免费领取30G安防礼包

欢迎加入安防 CEO 私董会
内容来源:智能化弱电圈
文章底部广告优惠招商
点击👇下方卡片关注后
回复“书籍”免费赠送50本财商书籍
点击关注公众号入3000人安防群
门禁系统,指“门”的禁止权限,是对“门”的戒备防范。通常包括控制器,读卡器,锁,开门按钮,管理软件。

1、门禁系统的识别流程
常规门禁系统识别权限的流程分为五步:
① 平台软件编辑权限;
② 权限下发至门禁控制器;
③ 刷卡时,卡号信息上传至门禁控制器;
④ 门禁控制器判断刷卡权限,合法则开门,非法则不开门;
⑤ 刷卡事件上传至管理平台;

2、IC卡与ID卡的区别?
① ID卡是一种不可写入的感应卡,生活中常见的有考勤卡,门禁卡等。

门禁卡
② IC卡支持读写功能,常见的有公交卡 ,员工卡等。

员工卡
3、读卡器是如何读取卡片信息的?
目前IC卡和ID卡常见的类型都是射频卡,运用的是无线射频技术。当卡片靠近读卡区时,卡片会自动发送信息,读卡器读取并解码信息后,将卡片信息传送至控制主机判断权限。

4、什么是韦根协议?
韦根(Wiegand)协议是国际上统一的通讯协议,有着很多的格式,为了与其他厂家进行区分,海康经销门禁产品使用的都是私有韦根27和韦根35协议;
① 通常一根信号线只能接一个读卡器;
② 理论传输距离达110米,实际传输在80米左右;

5、什么是RS485协议?
RS485协议也是一种常见的通讯协议,但是各个厂家之间不通用;
① 可通过一根信号总线,采用手拉手方式串接多个读卡器;
② 传输距离相对较远,当信号波特率在19200时,传输距离可达600-800米;

6、门禁系统安装与调试
①电源
保证功率足够,尽量使用线性电源,门锁和控制器应分开供电。电源的安装尽可能靠近用电设备,以避免受到干扰和传输损耗。
②布线
分为电源线、通讯线、信号线,布线时注意强、弱电分开走线,两管相隔要求大于20cm左右。
电源线:线径足够粗,采用多股导线。
信号线和通讯线:采用屏蔽五类双绞线。其中485总线必须使用双绞的一对线连接。在选购线材的时候建议采用4*0.5的四芯屏蔽线。
③注意事项
(1)、屏蔽线千万不能用来作为0V电压(电源地)的连接线
(2)、每个屏蔽回路只能有一个接地端
(3)、当屏蔽回路中无法接地时可将屏蔽线连接到网络的另一屏蔽回路中。
(4)、必须将各个模块的的信号地连接在一起。
(5)、若线路中间有断点,需将断点用烙铁焊上并做好绝缘处理。
(6)、不要将网络连接线与交流电源放在一起。
(7)、如果网络连线超过1000米,要加中继器,中继器后可以再延长1000米。
④位置选取
(1)读卡器:不要安装在金属物体上,两台读卡器之间的距离不要少于30厘米,最好通过控制器供电。如果读卡器单独从外部供电,读卡器的电源请使用线性稳压电源(变压器),并且不能把直流的负极连接到交流的接地端。
(2)网络适配器:和控制器之间的连接采用手拉手的方式。
(3)控制器:不带隔离的控制器,建议使用同一电源。
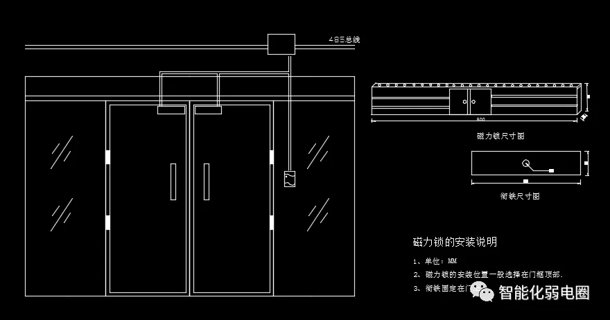
(4)锁:在安装磁力锁时,一定要使锁体和继铁板能紧密的结合,否则会出现吸力不够的情况。电插锁,在安装电插锁时如果需要开插孔,注意孔径一定要够大,深度一定要够深,能让锁舌完全插入。锁舌不能完全插入,锁门后会出现锁舌不停的跳动或工作电流一直很大,锁体发烫的现象。
7、门禁系统常见故障及维修方法
1.检查电控锁是否正常检查电源或者更换电控锁
2.锁舌与锁扣是否发生机械性卡死修复机械故障或者更换零部件
3.查看控制板上的指示灯,控制板与模块间通讯是否正常排除故障
4.检查读卡器与模块之间的通讯是否正常排除故障
5.是否设置了信息日关闭命令通过软件调整开门时间
6.操作人员是否对门禁系统进行初始化或者其他命令通过软件重新授权
1.检查串口是否设置错误(确定所使用的串口)
2.检查门禁通讯总线是否存在短路或断路(排除通讯线短路与断路现象)
3.检查RS485通讯卡通讯芯片75184损坏(更换通讯芯片75148)
4.RS485通讯卡损坏(更换RS485通讯卡)
5.检查网线水晶头是否做好,检查网线是否通,ping门禁控制器的地址。
清空门禁控制器,重新加载时间
1.操作人员将门禁器状态设置为常开,或其它原因导致控制器处于常开状态;2.控制器故障;
处理方法:
将门锁控制器状态设为正常,若故障现象仍然存在,则更换控制器。
1.IC卡片在IC卡授权时已作读卡有效时间段设置(可作全天读卡有效设置)
2.门禁控制器异常发热(更换门禁主板)
3.门禁读写天线(调整微调电容,增强读卡距离)
1.使用了不符合要求的信号线或劣质的信号线;
2.信号线敷设不规范,如信号线跟电源线穿在同一条管内。
附门禁系统安装系统图、大样图、管线图、电锁安装图(CAD可编辑,上传微信群)

双开门单向读卡

单开门单向读卡

双开门双向

单开门双向





门禁设备安装三视图



▌3000人安防交流群
建筑智能化生态圈建立至今,已有3000多位同行进群。目前建立了6个群每群达到400人以上、(群内严禁广告!),成为业务交流和技术交流的优质圈子,如果你不仅希望获得优质资料,还渴望与同行交流,我相信进入本群不会让你失望。入群请添加小编微信号:zhixiangbang02,并注明「入群」。或者点击文尾阅读原文查看入群流程。

建筑智能化生态圈安防交流群
热文回顾
你想不想在这里展示您的项目让更多人看到,如果想请联系小编


👇点击 阅读原文 免费加入安防无广告资源对接群