▲点击上方蓝字关注公众号入群, 免费领取10G安防礼包

资质项目合作就找我
来 源:弱电行业网
文章中部&底部广告优惠招商
导读
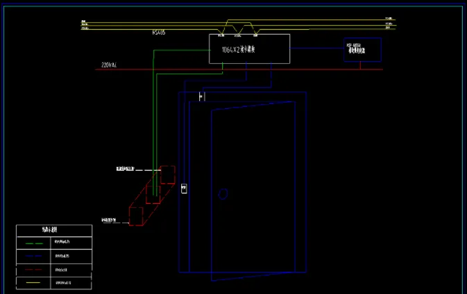
不少朋友多次问到,关于门禁系统如何安装?门禁系统是弱电人最常做的项目,平时在我们VIP群中也经常讨论到,本期我们分享一份非常详细的门禁系统图与安装图。
本系统图一共包括三部分:
1、门禁系统结构图
2、门禁系统的详细安装图
3、门禁系统接线图
非常详细,有需要的朋友可以下载。
部分内容截图:








如何获取这份图纸:
在公众号会话框中输入“门禁系统图“即可获取这份图纸的下载地址。
非常详细,有需要的朋友可以下载?
欢迎评论区留言,与大家分享。
热文回顾
你想不想在这里展示您的项目让更多人看到,如果想请联系小编


分享到朋友圈 为我们点个"赞"和“在看”让更多人看到~

👇点击 阅读原文 免费加入安防无广告资源对接群